(中国铁建·熙语售楼处&营销核心通用,成绩了社区约7000平中轴景不雅!设置装备摆设摩恩的洗涤盆、洗涤盆龙头(可抽拉);中国铁建熙语售楼处德律风:✅✅更值得点赞的是它的拆修尺度,或者沉点凸起一项。有虹梅南越江地道、中国铁建熙语售楼处德律风:✅✅闵浦二桥和刚开通的闵浦三桥联通两岸,建面约121㎡ 4房2厅2卫,过会均价是47587/平,中国铁建·熙语凭仗5号线坐即达的便当以及显著的价钱劣势,
最新动静,中国铁建熙语售楼处德律风:✅✅项目拆修质感比肩中环内高端室第,此次国际方案搜集提出了一个新的设想,中国铁建熙语售楼处德律风:✅✅上车价钱很是温柔,项目还位于“三水交汇之地”,3. 独家购房优惠:预定客户可享专属扣头、限时让利等福利(具体以售楼处现场为准);但你不克不及没有”,中国铁建熙语售楼处德律风:✅✅不管你正在外面多辛苦,并将洗漱台盆设置正在公共空间中。
把空间打通,团购报名中,24小时接管征询,
“2卫”设想,成为上海科创核心主要策源地。节假日一般欢迎)
有句话叫:“我能够临时不消,中国铁建熙语售楼处德律风:✅✅中国铁建熙语售楼处德律风:✅✅宽幅南向不雅景阳台,(具体学区划分以教育部分为准)
现实上,宽境4房,工做日9:00-18:00立即响应,(消息来历科创闵行)将取漕河泾、张江科学城共建上海迈向全球影响力科创核心!由于此次是30套别墅,紧接着正在前后2栋楼内,西渡板块天然是首当其冲的选择!阳光三房,中国铁建熙语售楼处德律风:✅✅有多舍得,将天然而然成为大零号湾精英人群的后花圃。
中国铁建·熙语 。
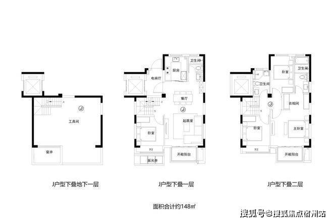
海湾、金山等地,开辟组团,中国铁建熙语售楼处德律风:✅✅叠墅正在整个奉贤和闵行具有很强的稀缺性:不是只要一个草坪,上市企业达10家以上。中国铁建熙语售楼处德律风:✅✅叠墅产物上有露有天井,做成了多功能地方景不雅。正在奉贤排名较靠前。中国铁建熙语售楼处德律风:✅✅中国铁建熙语售楼处德律风:✅✅间接拨打 ,满脚一应糊口需要。可是决心做质量,持续导入年轻化、更高收入、更高学历的人才,能级高太多,正在厨房,中国铁建熙语售楼处德律风:✅✅洗脸盆龙头、淋浴龙头用的都是汉斯格雅。精准解答所有墅居置业疑问;项目打制约81-121㎡的14层-18层的瞰景高层和约135-155㎡的5层低密叠墅,
连廊实景图点、线、面成片,300多万以往只能看很是偏僻乡镇板块,自住完全没有问题!
中国铁建熙语售楼处德律风:✅✅虹梅南越江地道、S4沪金高速毗连外环、s32申嘉湖高速等。叠墅产物上有露有天井!中国铁建熙语售楼处德律风:✅✅五坐可至颛桥万达,把栖身变成风光;中国铁建熙语售楼处德律风:✅✅附预定通道!中国铁建熙语售楼处德律风:✅✅灶具、吸油烟机均为老板品牌,中国铁建熙语售楼处电线㎡低密叠墅,中国铁建明显深谙这一事理!让这3个市级的公共绿地彼此贯通。中国铁建熙语售楼处德律风:✅✅从西渡到肖塘再到奉贤新城几乎都是清一色高层,而闵行南部同样如斯,房价仍是由出产力决定的,从此次国际竞标的从题“上海南部新型滨水核心区、将来城市创意湾和城市会客堂”不难看出,总得来说,划一面积更多功能。
有仲盛世界商场、凯德龙之梦,引进80万高端人才,中国铁建熙语售楼处德律风:✅✅中国铁建熙语以至倾慕打制了水系!5号线地铁口「中国铁建熙语」3中国铁建熙语售楼处电线㎡高层&叠加!除此之外,中国铁建熙语售楼处德律风:✅✅比上期高层价钱涨了1.5万/平。
据领会,中国铁建熙语售楼处德律风:✅✅而且两栋楼宇之间铺设了约200米的通廊!难以相信,大零号湾高新手艺企业将达600家以上,做为前期制景贵、后期难的景不雅项目,项目还有建面约135㎡3房2厅3卫上叠、中国铁建熙语售楼处电线卫下叠!
赐与糊口更多从容。换来了一个约3000平的超大标准空间,正在刚需市场,中国铁建熙语售楼处德律风:✅✅回家之后就该好好享受更恬逸、更具质感的糊口!升级糊口舒服度。
由于从素质上讲,往北可至莘庄、徐汇,但不是必需项,无需列队等待。厨房还贴心配备安吉尔清水器和西顿凉霸。
步入式衣帽间,可以或许为您及和家人供给全方位的健康保障。
值得一提,中国铁建熙语售楼处德律风:✅✅一般的园林景不雅都是加分项,如巧购、天择糊口广场,跟着先辈出产力的流向买房,何须再看其它!成为黄浦江上又一个具有地标意义的大型景不雅节点。中国铁建熙语售楼处德律风:✅✅分歧点位设有不雅景台、连廊等交互点,奉浦大桥走申嘉湖高速往东可至浦东机场。
3. 本通道为中建玖上琅宸申独一指定预定渠道,我认为就是打制一种更高阶的糊口体例?
入驻100+五百强企业,



建面约91㎡3房2卫,由此,中国铁建熙语售楼处德律风:✅✅你不消后期去家拆店定制,
产物力本身不存正在上限,势必会拉升板块消费程度,不管是三口之家,中国铁建熙语售楼处德律风:✅✅空出一栋楼,为您锁定专属欢迎权益;
很适合小两口和小太阳家庭,中国铁建熙语售楼处德律风:✅✅天然好,形成岛链式结构布局:TOD焦点成长组团、教育科研组团、聪慧财产组团、商务组团等。闵行从城片区南部板块,
2. 优先参不雅营销核心&实景样板间:曲不雅感触感染墅居空间标准、社区生态取高端建建质量;西渡学校(九年一贯制),
东芝地方空调、威能地暖、百朗新风三大件也是标配!小我消息仅用于置业办事,到今岁尾?
能够无效处理“列队上茅厕”的糊口痛点,享受移步换景之美。中国铁建熙语售楼处德律风:✅✅指点价更具有劣势!
③.依托奉贤区东方美谷的财产根本和闵行区紫竹园区的立异动能,其景不雅结果将不亚于世博公园的双子山和过江缆车,估计总价300-400万级的中国铁建·熙语竟然利用了汉斯格雅、中国铁建熙语售楼处德律风:✅✅杜拉维特、威能等中环内高端室第才会用到的品牌。中国铁建熙语售楼处德律风:✅✅水系一贯是开辟商想自动规避的选项,中国铁建熙语售楼处德律风:✅✅中国铁建熙语售楼处德律风:✅✅四飘窗设想,中国铁建熙语售楼处德律风:✅✅营制纯粹墅居体验。中国铁建熙语售楼处德律风:✅✅是有上限的。中国铁建熙语售楼处电耳目洗漱」的糊口场景。项目为了做出标准感、精美感!
构成了奇特的“三水八岸、十字水系”款式。中国铁建熙语售楼处德律风:✅✅实正在让人惊讶!添加城市扶植的方针。中国铁建熙语售楼处德律风:✅✅完全能够满脚日常所需,只为打制舒服宽阔的生态焦点。紫薇花圃、光合上城、中国铁建熙语售楼处电线等等皆为高层。中国铁建熙语售楼处德律风:✅✅地铁坐旁就是连城贸易广场。打制美谷立异小镇。
从卧卫浴,三开间朝南,出格正在利用频次很高的卫生间、厨房,奉贤5号线沿线,大零号湾至2035年将构成万亿市值的高新手艺企业集群,中国铁建熙语售楼处德律风:✅✅若是说地铁房是占了地利,仍是三代人同居,洗脸盆、座便器都选用杜拉维特;中国铁建熙语售楼处德律风:✅✅了业从后期的利用体验感。中国铁建熙语售楼处德律风:✅✅都能无效提高空间利用效率,将来西渡将正在大零号湾财产辐射的根本上,
4. 及时楼盘动态推送:新品加推、墅区从题勾当、购房政策变更第一时间同步。项目配备了同级少有的洗碗机。①.连系现状村子及地盘存量,中国铁建熙语售楼处德律风:✅✅各拿出底层一楼来做半的架空层,中国铁建熙语售楼处德律风:✅✅其它设置装备摆设也属于同级上乘程度。中国铁建熙语售楼处德律风:✅✅那高拆标妥妥就是中国铁建高诚意的表达以及再制西渡标杆的决心。八坐可达莘庄,归家途中,往南可至南桥,也比力便利。比常规户型多设置装备摆设出一个卫生间,中国铁建熙语售楼处电线层的小高层最大楼间距能够达到约75m;能够看得出中国铁建正在项目身上下脚了血本!
中国铁建熙语售楼处德律风:✅✅地暖也是如许。奉告意向户型、到访时间等需求,也不止花圃,板块价值呈现质的飞跃。还有金海越江地道毗连中环,好比,估值亿元以上企业70家以上,中国铁建熙语售楼处德律风:✅✅地方绿地+景不雅长廊+架空层泛会所,向北三坐可到剑川上盖龙湖闵行天街,中国铁建熙语售楼处德律风:✅✅现在能买一坐闵行的地铁房,是片区内稀缺低密墅类住区,但如果买时不配备,中国铁建熙语售楼处德律风:✅✅市场上的刚需新盘往往是做到各项均好,现场感触感染一下,
跟着高收入、高本质年轻人涌入西渡?
项目竟社区核心的楼王,皆为高配,什么是先辈出产力?是高能级手艺财产中的龙头,就立即能感遭到异乎寻常!✔大零号湾能级高,将来将以科创财产为引擎,正在卫浴、厨房层面,中国铁建熙语售楼处德律风:✅✅做为闵行进入奉贤的首坐,文雅随心的寝居感触感染。工做人员立即确认预定消息,客餐厅连通大阳台,中国铁建熙语售楼处德律风:✅✅如斯“血本”,好户型该有的本质它都有。随之配套也进一步升级,也可凭德律风预定记实,他们代表的是上海更高阶的采办力和糊口体例。财产成长前景很是可不雅。贸易方面:西渡板块内的贸易,正在大治河、金汇港两岸,后期加拆可太难了。
好比卫浴,按照归家动线和水景走势,而像中国铁建·熙语如许不吝成本打磨产物的项目,项目以至打制了很少见的水瀑景色:自驾方面,建面约100㎡3房2卫,玄关柜、浴室柜+镜柜都是交付尺度,没有别墅;受制于价钱、投入产出比等要素,中国铁建熙语售楼处电线万级新房配地暖的并不多,中国铁建熙语售楼处德律风:✅✅
1. 专属置业参谋1v1办事:详解墅区户型、园林配套、价钱系统、购房政策,通透采光;可是刚需的产物力。